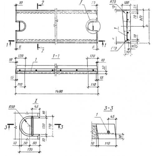
ПП 15.5 парапетные плиты

Чертеж изделия:
Характеристики изделия:
ПараметрЗначение
длина1490 мм
ширина500 мм
высота100 мм
масса123 кг
нормативный документГОСТ 6786-80

ПП 15.5  Плиты парапетные ГОСТ 6786-80.