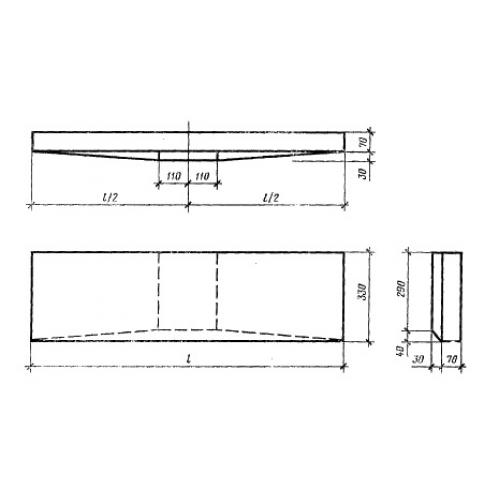
ЛСС 24 ступени плоские

Чертеж изделия:
Характеристики изделия:
ПараметрЗначение
длина2360 мм
ширина330 мм
высота100 мм
масса186 кг
нормативный документГОСТ 8717.0-84

ЛСС 24  Ступени плоские для сквозных лестничных маршей ГОСТ 8717.0-84.