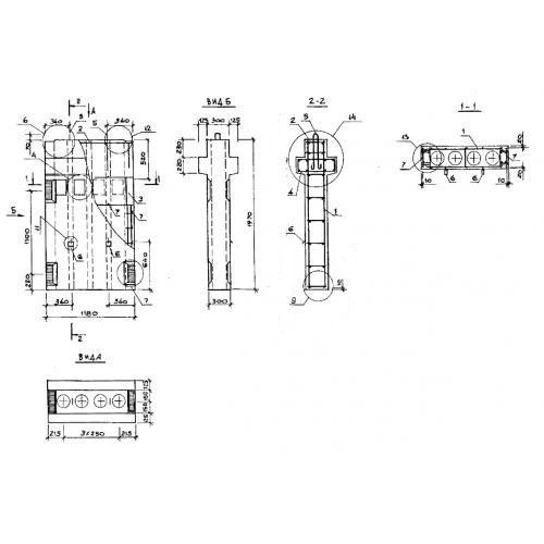
ВД 20-12-30 вентиляционные блоки
Характеристики изделия:
| Параметр | Значение |
|---|---|
| длина | 1180 мм |
| ширина | 500 мм |
| высота | 1970 мм |
| масса | 1325 кг |
| нормативный документ | Серия 1.034.1-1/90 |
Цена:
Рассчитать стоимостьВД 20-12-30 Вентблоки-диафрагмы жесткости Серия 1.034.1-1/90.
