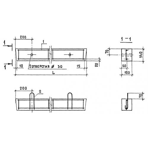
2ПБ 29 перемычки брусковые

Чертеж изделия:
Характеристики изделия:
ПараметрЗначение
длина2850 мм
ширина120 мм
высота140 мм
масса120 кг
нормативный документСерия 1.038.1-1

2ПБ 29  Перемычки брусковые Серия 1.038.1-1.