2ПР 24

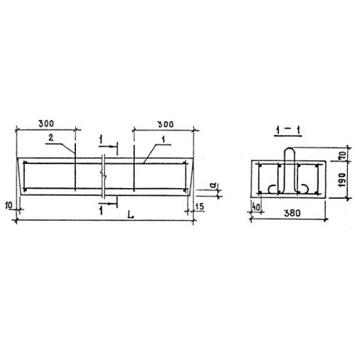
Чертеж изделия:
Характеристики изделия:
ПараметрЗначение
длина2460 мм
ширина380 мм
высота190 мм
вес444 кг
серия1.138-10

2ПР 24 Перемычки плитные по серии 1.138-10.