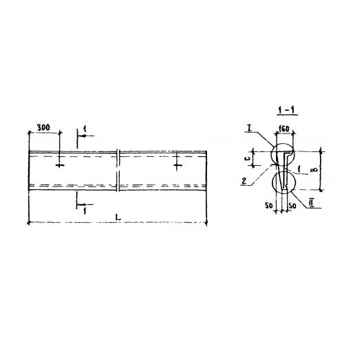
ПП 24.6 Плиты парапетов рядовые для крупноблочных зданий.
Характеристики изделия:
| Параметр | Значение |
|---|---|
| длина | 2380 мм |
| ширина | 600 мм |
| высота | 160 мм |
| масса | 290 кг |
| нормативный документ | Серия 1.138.1-20 |
Цена:
Рассчитать стоимостьПП 24.6 Железобетонные плиты парапетные Серия 1.138.1-20.
