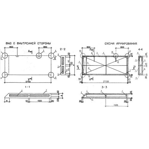
ПСТ 27.5.21.3.5 панели стеновые

Чертеж изделия:
Характеристики изделия:
ПараметрЗначение
длина2750 мм
ширина350 мм
высота2085 мм
масса2310 кг
нормативный документСерия 1.232.1-7

ПСТ 27.5.21.3.5  Панели стеновые трехслойные (панель рядовая для внутренних углов зданий) Серия 1.232.1-7.