ПСТ 6.18.3.5 панели стеновые

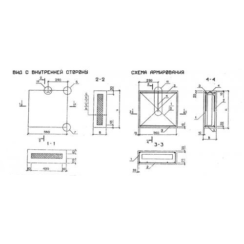
Чертеж изделия:
Характеристики изделия:
ПараметрЗначение
длина580 мм
ширина350 мм
высота1785 мм
масса470 кг
нормативный документСерия 1.232.1-7

ПСТ 6.18.3.5  Панели стеновые трехслойные (простеночные) Серия 1.232.1-7.