ПС 120.18

Чертеж изделия:
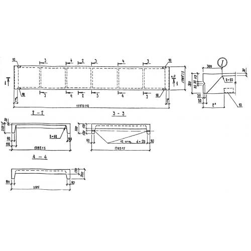
Характеристики изделия:
ПараметрЗначение
длина11970 мм
ширина300 мм
высота1785 мм
вес3700 кг
серия1.432.1-20

ПС 120.18 Панели стеновые по серии 1.432.1-20.