П 14
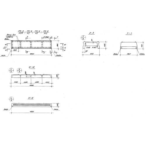
Характеристики изделия:
| Параметр | Значение |
|---|---|
| длина | 4950 мм |
| ширина | 985 мм |
| высота | 400 мм |
| вес | 1570 кг |
| серия | 1.440-2 |
Цена:
Рассчитать стоимостьП 14 Плиты ребристые по серии 1.440-2.
| Параметр | Значение |
|---|---|
| длина | 4950 мм |
| ширина | 985 мм |
| высота | 400 мм |
| вес | 1570 кг |
| серия | 1.440-2 |
П 14 Плиты ребристые по серии 1.440-2.
