1ПЛ 12

Чертеж изделия:
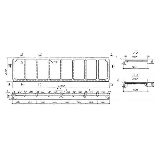
Характеристики изделия:
ПараметрЗначение
длина11960 мм
ширина2980 мм
высота450 мм
масса5700 кг
нормативный документСерия 1.465.1-15

1ПЛ 12  Плиты с проемом в полке для устройства легкосбрасываемой кровли Серия 1.465.1-15.