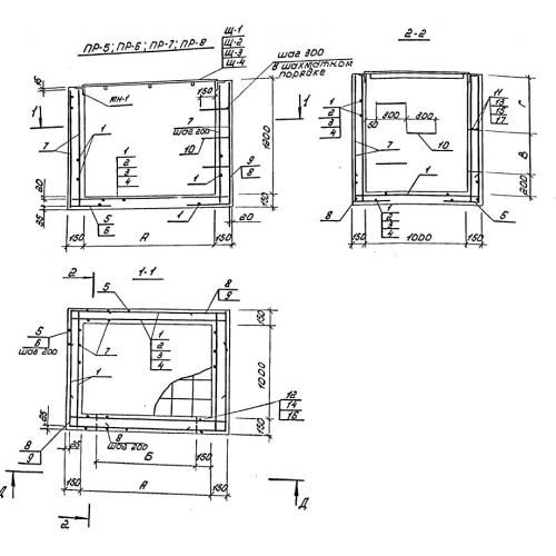
ПР-6

Чертеж изделия:
Характеристики изделия:
ПараметрЗначение
длина1600 мм
ширина1300 мм
высота1350 мм
вес2925 кг
серия3.006 КР-1

ПР-6 Монолитные приямки по серии 3.006 КР-1.