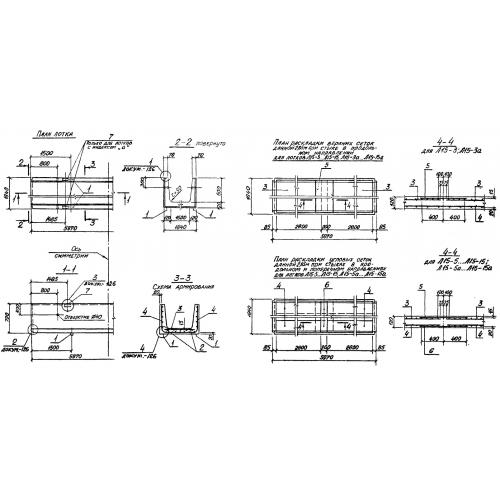
Л 15

Чертеж изделия:
Характеристики изделия:
ПараметрЗначение
длина5970 мм
ширина1840 мм
высота720 мм
масса4950 кг
нормативный документСерия 3.006.1-2/82

Л 15  Лотки теплотрасс Серия 3.006.1-2/82.