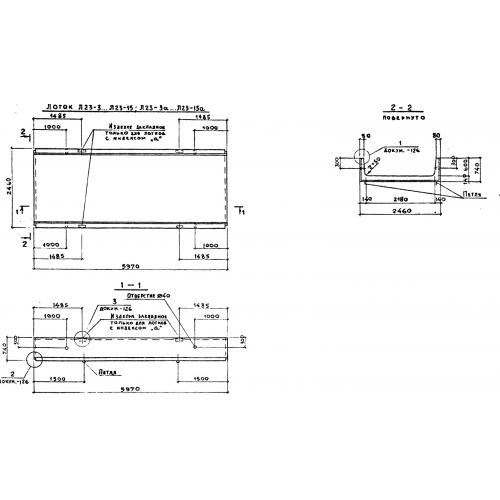
Л 23

Чертеж изделия:
Характеристики изделия:
ПараметрЗначение
длина5970 мм
ширина2460 мм
высота740 мм
масса7100 кг
нормативный документСерия 3.006.1-2/82

Л 23 Лотки теплотрасс Серия 3.006.1-2/82.