Л 24

Чертеж изделия:
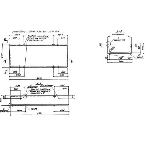
Характеристики изделия:
ПараметрЗначение
длина5970 мм
ширина2460 мм
высота1040 мм
масса8100 кг
нормативный докуцментСерия 3.006.1-2/82

Л 24 Лотки теплотрасс Серия 3.006.1-2/82.