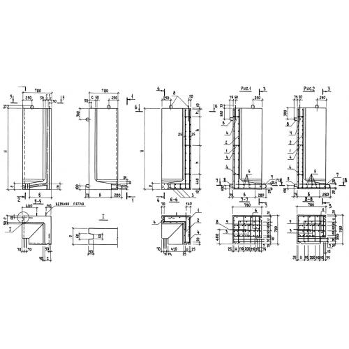
БУ 33-8

Чертеж изделия:
Характеристики изделия:
ПараметрЗначение
длина780 мм
ширина780 мм
высота3500 мм
масса2530 кг
нормативный документСерия 3.006.1-3/83

БУ 33-8  Блоки тоннелей угловые Серия 3.006.1-3/83.