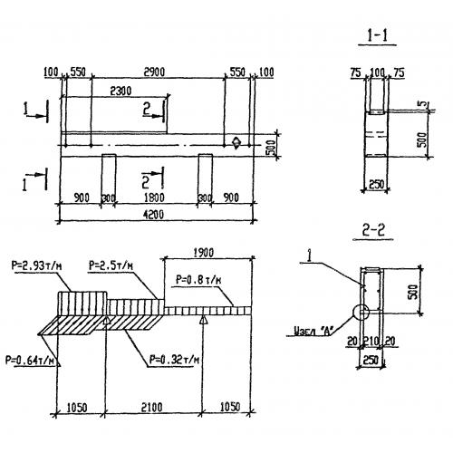
Т 3

Чертеж изделия:
Характеристики изделия:
ПараметрЗначение
длина4200 мм
ширина250 мм
высота500 мм
вес1300 кг
серия3.016.1-11.

Т 3 Траверсы по серии 3.016.1-11.