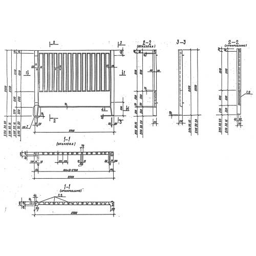
2ПБ 30.20 панель ограждения

Чертеж изделия:
Характеристики изделия:
ПараметрЗначение
длина3000 мм
ширина120 мм
высота2550 мм
масса1300 кг
нормативный документСерия 3.017-3

2ПБ 30.20  Плита бетонная (панель ограждения) Серия 3.017-3.