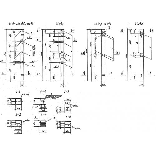
2С 24 столб забора
Характеристики изделия:
| Параметр | Значение |
|---|---|
| длина | 2400 мм |
| ширина | 140 мм |
| высота | 140 мм |
| масса | 130 кг |
| нормативный документ | Серия 3.017-3 |
Цена:
Рассчитать стоимость2С 24 Железобетонные стобы оград Серия 3.017-3.
| Параметр | Значение |
|---|---|
| длина | 2400 мм |
| ширина | 140 мм |
| высота | 140 мм |
| масса | 130 кг |
| нормативный документ | Серия 3.017-3 |
2С 24 Железобетонные стобы оград Серия 3.017-3.
