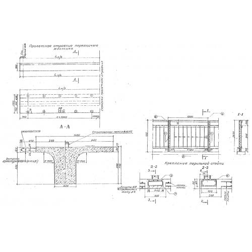
Блок №15

Чертеж изделия:
Характеристики изделия:
ПараметрЗначение
длина15000 мм
ширина1450 мм
высота700 мм
вес15100 кг
серия3.501-96

Блок №15 Блоки пролетных строений по серии 3.501-96.