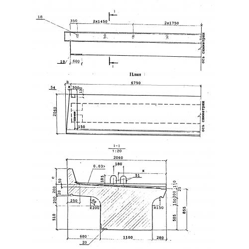
БП 1.135

Чертеж изделия:
Характеристики изделия:
ПараметрЗначение
длина13500 мм
ширина2060 мм
высота1480 мм
вес43600 мм
серия3.501.1-175.93

БП 1.135 Плитные балки по серии 3.501.1-175.93.