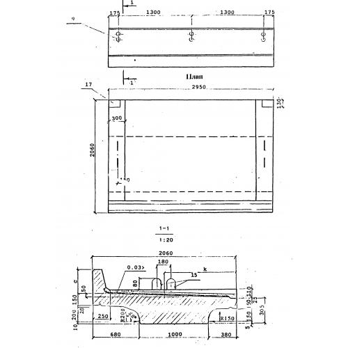
БП 1.29

Чертеж изделия:
Характеристики изделия:
ПараметрЗначение
длина2950 мм
ширина2060 мм
высота710 мм
вес5100 кг
серия3.501.1-175.93

БП 1.29 Плитные балки по серии 3.501.1-175.93.