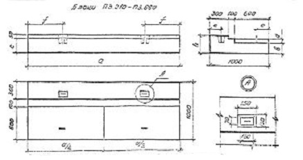
П 3 Блоки перекрытия оголовочной части трубы

Чертеж изделия:
Характеристики изделия:
ПараметрЗначение
длина4600 мм
ширина1000 мм
высота430 мм
масса4200 кг
нормативный документСерия 3.501.1-179.94

П 3  Блоки перекрытий оголовочной части труб по Серии 3.501.1-179.94.