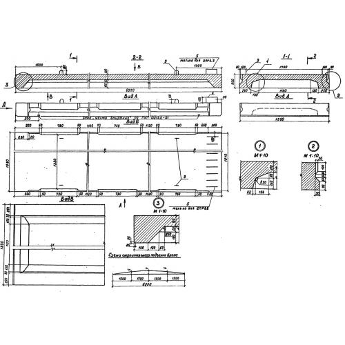
2ПР 6

Чертеж изделия:
Характеристики изделия:
ПараметрЗначение
длина6000 мм
ширина1980 мм
высота300 мм
вес3.503.1-75

2ПР 6 Плита ребристая с ненапрягаемой арматурой по серии 3.503.1-75.