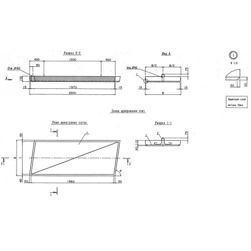
ПТК 200.100.15 Плиты тротуарные косые

Чертеж изделия:
Характеристики изделия:
ПараметрЗначение
длина2000 мм
ширина1000 мм
высота150 мм
вес750 кг
нормативный документСерия 3.503.1-96

ПТК 200.100.15 Плиты  тротуарные косые по Серии 3.503.1-96.