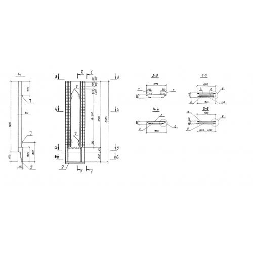
2ПС 72

Чертеж изделия:
Характеристики изделия:
ПараметрЗначение
длина1970 мм
ширина450 мм
высота8200 кг
вес10500 кг
серия3.902.1-12

2ПС 72 Стеновые панели для опускных колодцев по серии 3.902.1-12.