Л 5

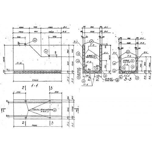
Чертеж изделия:
Характеристики изделия:
ПараметрЗначение
длина2980 мм
ширина1440 мм
высота1720 мм
масса3725 кг
нормативный документСерия 4.902-3

Л 5   Лотки по Серии 4.902-3.