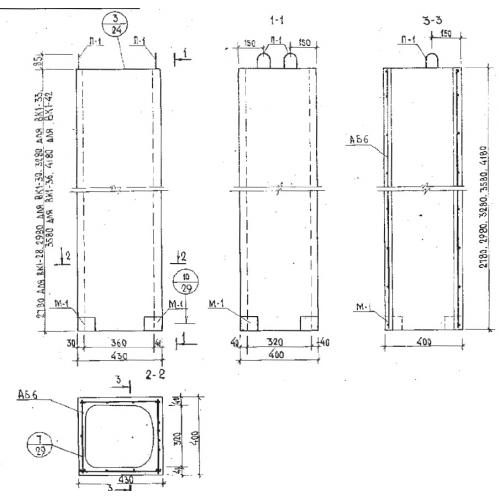
ВК 1-42 венткороб

Чертеж изделия:
Характеристики изделия:
ПараметрЗначение
длина430 мм
ширина400 мм
высота4180 мм
масса750 кг
нормативный документСерия Б1.134.1-7

ВК 1-42 Венткороба по Серии Б1.134.1-7.