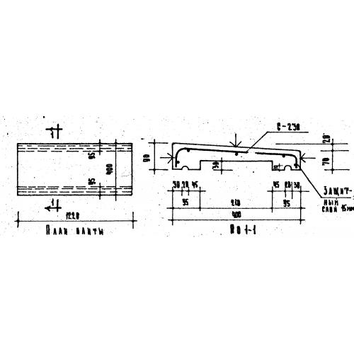
АП 1-4 плиты парапетные
Характеристики изделия:
| Параметр | Значение |
|---|---|
| длина | 1220 мм |
| ширина | 400 мм |
| высота | 90 мм |
| масса | 80 кг |
| нормативный документ | Серия ИИ 03-02 |
Цена:
Рассчитать стоимостьАП 1-4 Плиты парапетные по Серии ИИ 03-02.
| Параметр | Значение |
|---|---|
| длина | 1220 мм |
| ширина | 400 мм |
| высота | 90 мм |
| масса | 80 кг |
| нормативный документ | Серия ИИ 03-02 |
АП 1-4 Плиты парапетные по Серии ИИ 03-02.
