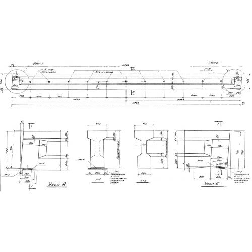
БОС 12
Характеристики изделия:
| Параметр | Значение |
|---|---|
| длина | 11966 мм |
| ширина | 400 мм |
| высота | 788 мм |
| масса | 5500 кг |
| нормативный документ | Серия ПК-01-116 |
Цена:
Рассчитать стоимостьБОС 12 Балки односкатные с проволочной арматурой по Серии ПК-01-116.
| Параметр | Значение |
|---|---|
| длина | 11966 мм |
| ширина | 400 мм |
| высота | 788 мм |
| масса | 5500 кг |
| нормативный документ | Серия ПК-01-116 |
БОС 12 Балки односкатные с проволочной арматурой по Серии ПК-01-116.
