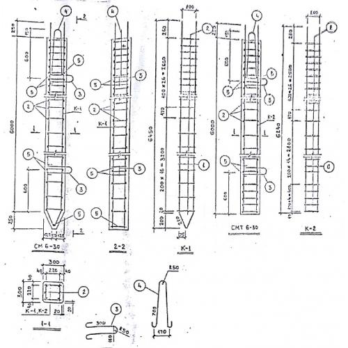
СМТ 6-30

Чертеж изделия:
Характеристики изделия:
ПараметрЗначение
длина6250 мм
ширина300 мм
высота300 мм
вес1350 кг
серияРМ 2-77

СМТ 6-30 Сваи по серии РМ 2-77.