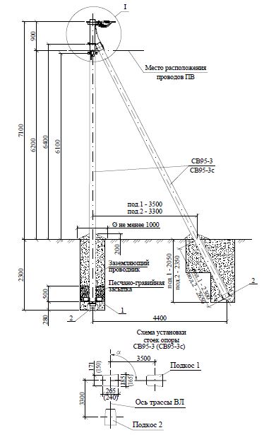
УА 31

Чертеж изделия:
Характеристики изделия:
ПараметрЗначение
длина9400 мм
ширина185 мм
высота265 мм
масса900 кг
нормативный документШифр 26.0085

УА 31   Угловые анкерные одноцепные опоры Шифр 26.0085.