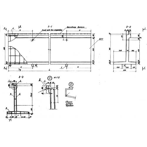
БСТ-30

Чертеж изделия:
Характеристики изделия:
ПараметрЗначение
длина2980 мм
ширина600 мм
высота800 мм
вес654 кг
серияТП 501-07-5.84

БСТ-30 Стенки бортовые по проекту ТП 501-07-5.84.