П 12.18

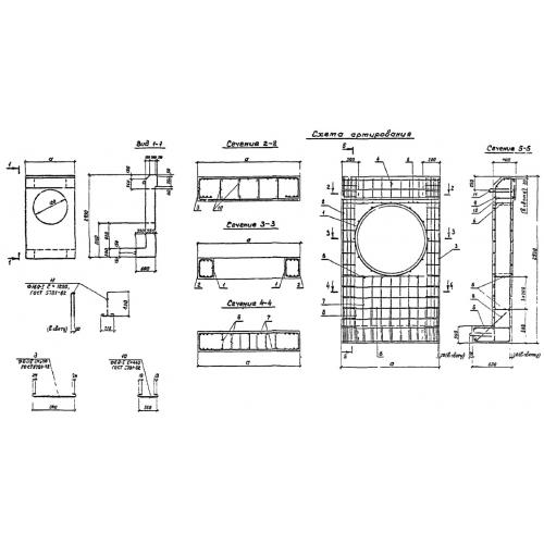
Чертеж изделия:
Характеристики изделия:
ПараметрЗначение
длина2930 мм
ширина1750 мм
высота680 мм
масса3900 кг
нормативный документТП 503-7-015.90

П 12.18  Портальные стенки по Типовому проекту ТП 503-7-015.90.