12 МО

Чертеж изделия:
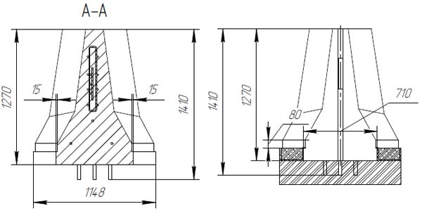
Характеристики изделия:
ПараметрЗначение
длина3552 мм
ширина540 мм
высота1270 мм
масса6000 кг
нормативный документТУ 5899-002-61548960-2010

12 МО  Блоки переходные  парапетного одностороннего ограждения мостовой группы по ТУ 5899-002-61548960-2010.